Land Development Projects
Cannon Village
Land acquisition, entitlement process, and preparation for residential and commercial development.
Key Outcomes: Transitioned to developers for final build-out.
Fergus Crossroads
Planned unit development including town homes, single family detached homes, and commercial.
Location: City of York, SC
Acreage: +/- 115 (total)
Residential Acreage: 110
Commercial Acreage: 5
Number of Units: 353 (total residential)
Town Home Units: 110
Single Family Detached Units: 243
Liberty Ridge
Single family detached, residential community.
Location: City of York, SC
Acreage: +/- 35.4
Number of Units: 123 SFD Lots
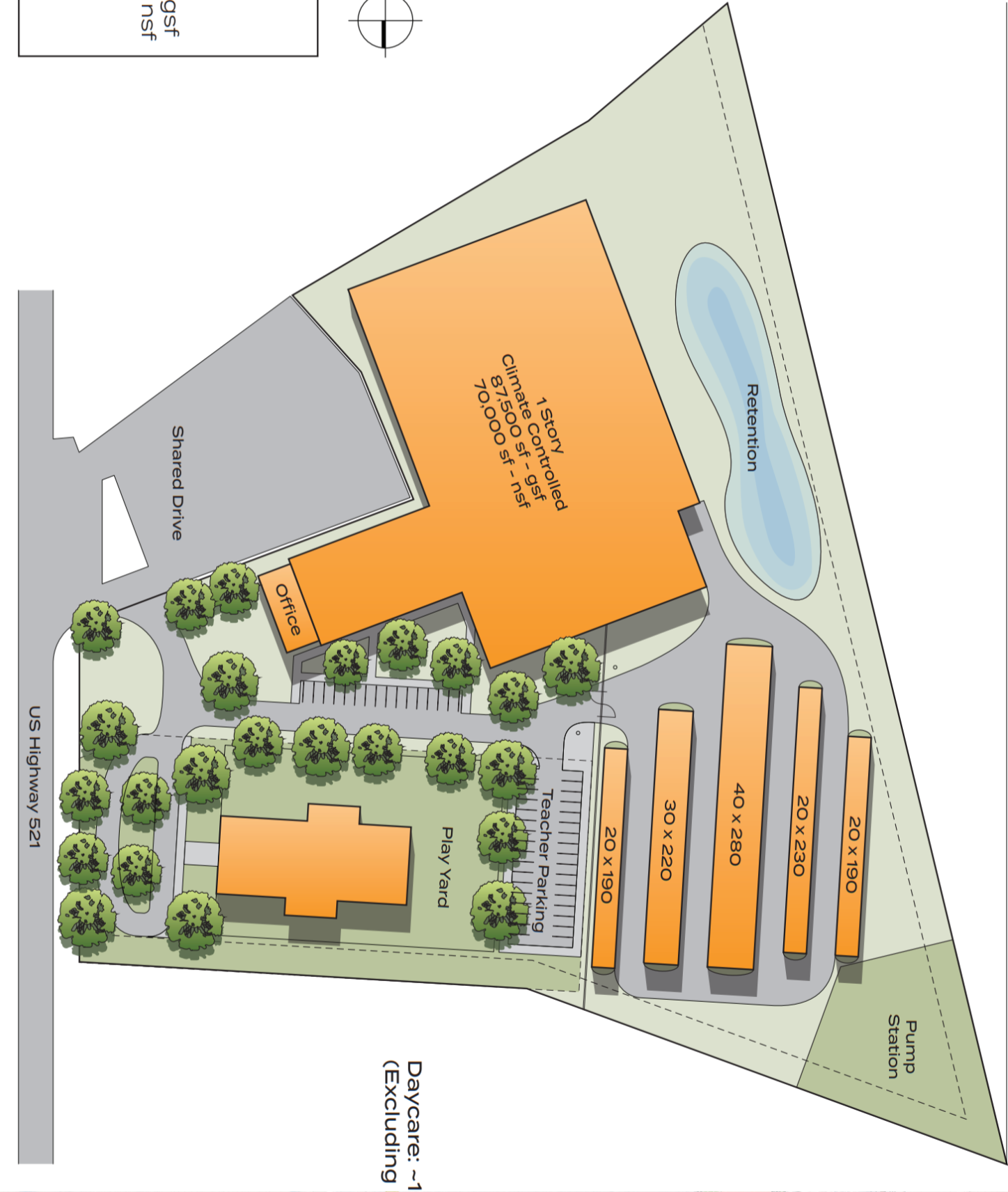
Indian Land
Storage & Daycare Development
Location: Indian Land, SC
Acreage: +/- 9.4
Storage Acreage: 7
Daycare Acreage: 2
Climate Controlled Storage: 87,500sf
Traditional Storage: 30,000sf
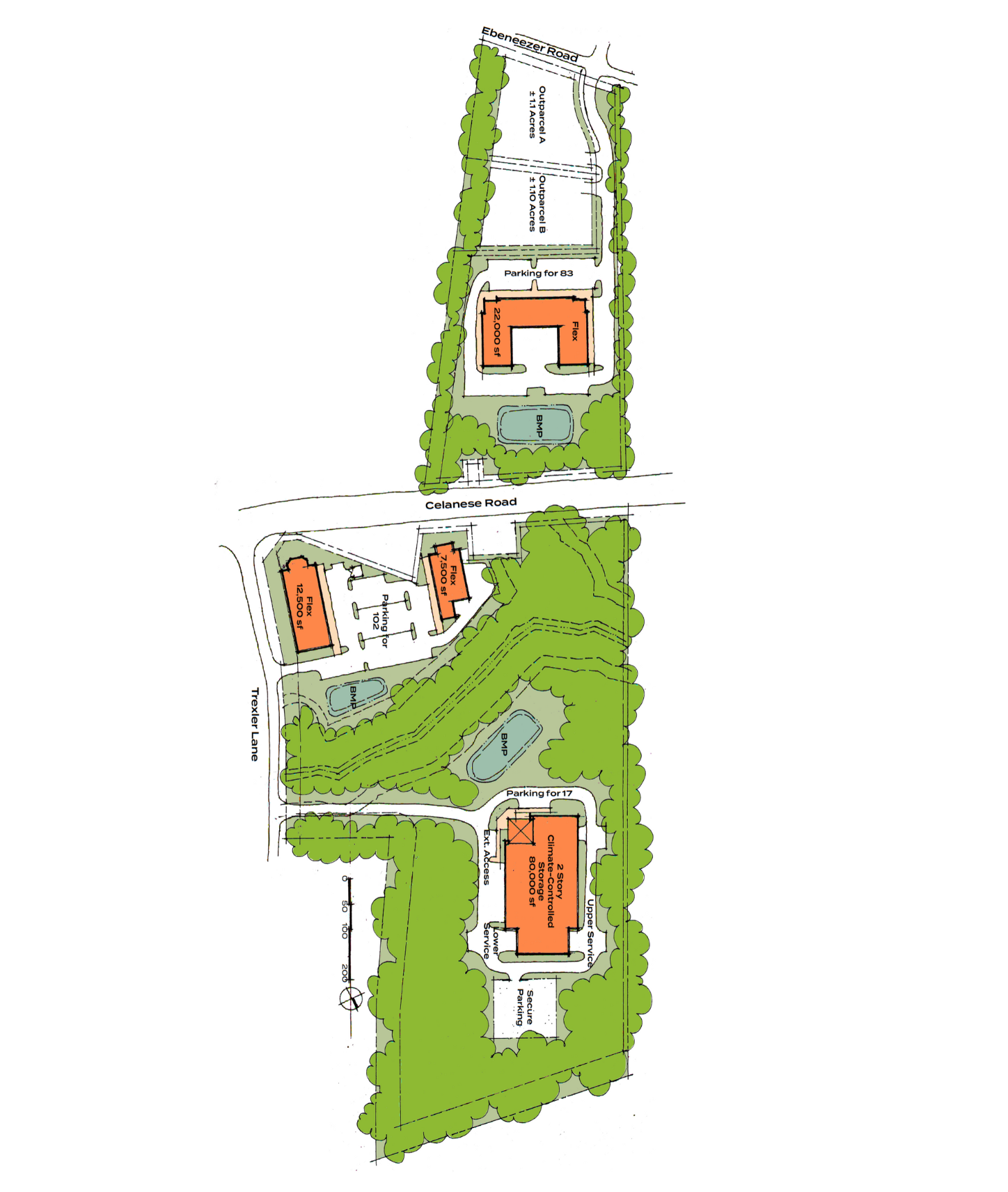
Rock Hill
Mixed use development.
Location: Rock Hill, SC
Acreage: +/-
Climate Controlled Storage: 80,000sf with additional outdoor storage lot
Flex Space: 42,000sf
Outparcels: 2.2 acres
Wilson Tract
Planned unit development including town homes, multifamily, duplexes, single family detached homes, and commercial.
Location: City of Gastonia, NC
Acreage: +/- 125
Number of Units: 616 (total residential)
Asbury Ridge
Planned unit development to include single family detached homes, and commercial.
Location: York County, SC
Acreage: +/- 52.7
Residential Acreage: 45.9
Commercial Acreage: 6.8
Number of Units: 152 SFD Lots
Commercial: 3 out parcels
Boshamer Farms
Single family detached, residential community.
Location: Clover, SC
Acreage: +/- 51.6
Number of Units: 140 SFD Lots
Blanton Farm
Planned unit development to include town homes, single family detached homes, commercial and industrial .
Location: Shelby, NC
Acreage: +/- 834.57 (total)
Residential Acreage: 697.21
General Business Acreage: 15.83
General Industrial Acreage: 106.71
Number of Units: 1,644 (total residential)
Town Homes Units: 491
Single Family Detached Units: 1153
Commercial: retail/commercial (62,000sf max) & self-storage or outdoor storage (6.48 acres max)
Industrial: up to 5 lots
Active Projects
andWhy Our
Projects Standout
At Southfork Ventures, we simplify the complex world of land acquisition, due diligence, entitlements, and permitting. Whether you’re a seasoned developer or exploring a new opportunity, our team’s hands-on expertise and deep understanding of the Carolinas’ markets ensure that you’re never navigating the process alone. From identifying promising parcels to securing all necessary approvals, we align every step with your unique vision—so you can confidently bring your project to life.
